Thema
Erweiterung des Humboldt-Gymnasiums Trier
BGF
x m²
Jahr
2019
Ort
Trier
Verfahren
Wettbewerb 2019, 1.Preis
Leitgedanke und Entwurfsansatz
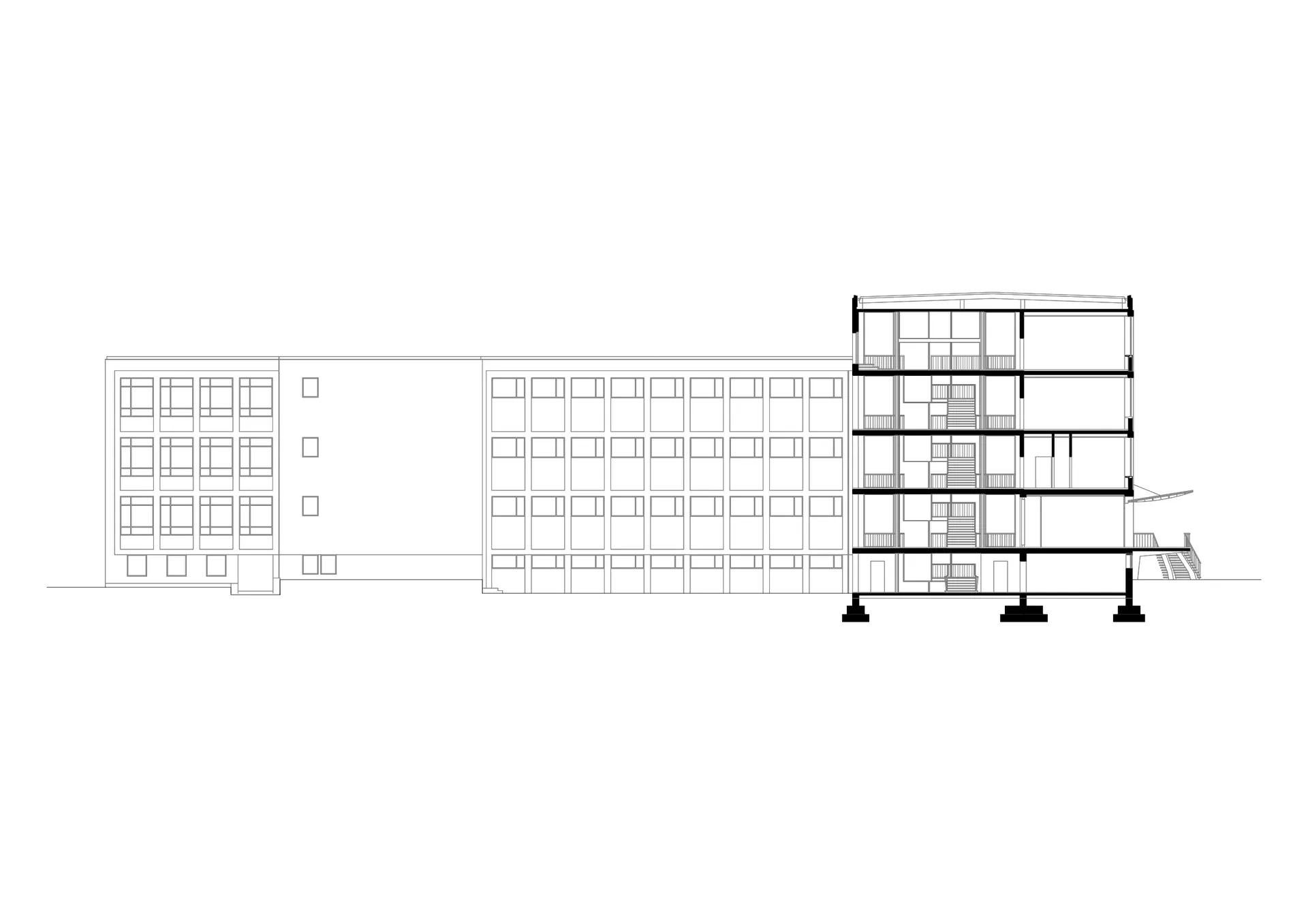
Der Anbau wird vom Augustinerhof aus erschlossen und stellt die barrierefreie Erschließung des gesamten Schulkomplexes sicher. Die Mensa im Erdgeschoss bietet durch die direkte Anbindung an den Schulhof und den Schulgarten eine hohe Aufenthaltsqualität. Die Außenstufen der leicht abgesenkten Mensa sind zum Schulhof hin orientiert, um eine optimierte Raumhöhe zu erreichen. Die bestehende Hausmeisterwohnung bildet eine Nutzungszäsur im Kellergeschoss und stellt eine geeignete Schnittstelle für die Anlieferung und den Eingang der Vollküche dar.
Im alten Mensaraum erfolgt die Erschließung sowie die Anlieferung der Küche durch Personal- und Lagerräume. Die geringe Geschosshöhe ist für die temporär genutzten Räume ausreichend. Im Anbau sind eine großzügige Vollküche, eine Mensa und ein Technikraum geplant. Der zum Schulhof orientierte Mensaraum bildet mit seiner leicht erhöhten Geschosshöhe einen qualitätsvollen Aufenthaltsort.
Erschließung
Die Anlieferung der Vollküche sowie die barrierefreie Erschließung des Humboldt-Gymnasiums sind aktuell über ein Schrankensystem des Augustinerhofs sichergestellt. Das vorhandene Treppenhaus am Schulhof wird um ein Geschoss erweitert, um die Aufstockung normgerecht zu entfluchten. Dabei fällt die gewendelte Nottreppe im Bestand weg. Im Anbau entsteht ein großzügiges Treppenhaus, das die Barrierefreiheit durch einen Aufzug sichert. Das zentral gelegene Treppenhaus ermöglicht den Rückbau langer Flure und bildet qualitativ hochwertige Schnittstellen.
Regelgeschoss: Die Geschosse EG bis 2. OG erhalten als Klassentrakt die gleiche Struktur. Im Anbau entstehen jeweils vier neue Räume um den zentralen Platz am Treppenhaus. Die Ganztagsräume sind im Erdgeschoss in der Nähe der Mensa angeordnet und zuschaltbar ausgeführt. Geschossweise ergibt sich ein Ersatzraum für die Kursräume 29, 120 und 221, die im Bestand wegfallen. Die gewonnene Fläche im Übergangsbereich des Bestandes wird als Potenzialfläche identifiziert. Hier entstehen offene Strukturen, Aufenthaltsräume für die Verwaltung und ein Marktplatz für Schüler. Diese Raumaufweitungen setzen einen neuen Impuls zwischen Bestand und Neubau.
Die Aufstockung erhält durch die zentral gelegene Bibliothek eine identitätsstiftende Struktur, die als Verbindungselement zwischen Bestand und Neubau fungiert.
Die innere Aufteilung der ehemaligen Aufstockung bleibt vergleichbar. Neben der barrierefreien Erschließung aus dem Neubau wird sie durch das erweiterte Treppenhaus erschlossen. – Die Bibliothek bildet eine offene und gut belichtete Räumlichkeit. Der Raum ist durch einen Rücksprung in der Fassade sichtbar und wird durch eine überdachte Dachterrasse erweitert. – Im Anbau befindet sich der letzte Kursraum.
Außerdem sind hier die geforderten naturwissenschaftlichen Bereiche mit den entsprechenden Sammlungs- und Vorbereitungsräumen angeordnet. Der Außenbereich zur Dachterrasse mit grünem Beet weist Qualitäten und Potenziale auf.
Der Erweiterungsbau sichert die barrierefreie Erschließung des gesamten Schulkomplexes. Ein zentral im Foyer gelegener Aufzug sowie Rampen im Außenbereich ermöglichen den barrierefreien Zugang zum Schulhof.


